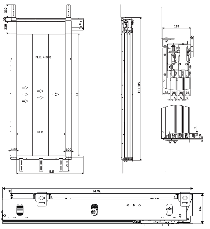
Telescopic 3 Panel Landing Door

Döküman