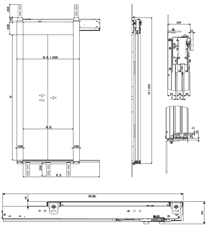
Telescopic 2 Panel Landing Door

Döküman