Technical Specifiation
Drive Type Hydraulic / Worm Screw
Load Capability 315 / 400 kg
Distance 15 mt
Speed 0,15 mt/sec
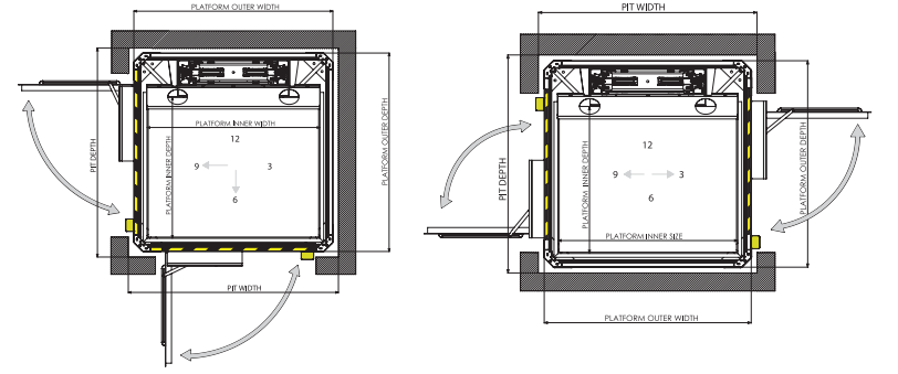
Platform Internal Dimensions 1100*1400 mm / (Standard Dimension)
Platform External Dimensions 1600*1600 mm / (Standard Dimension)
Pit 120 mm – 150 mm – 250 mm
Door Fully Automatic
Emergency Rescue System Ups / Manual
Announcment System 3 Languages / English, Arabic, France, Spain
Intercom System Available
Main power requirement 220 V AC - 50 Hz -Monofaze / 380 V AC - 50 Hz -Three Phase