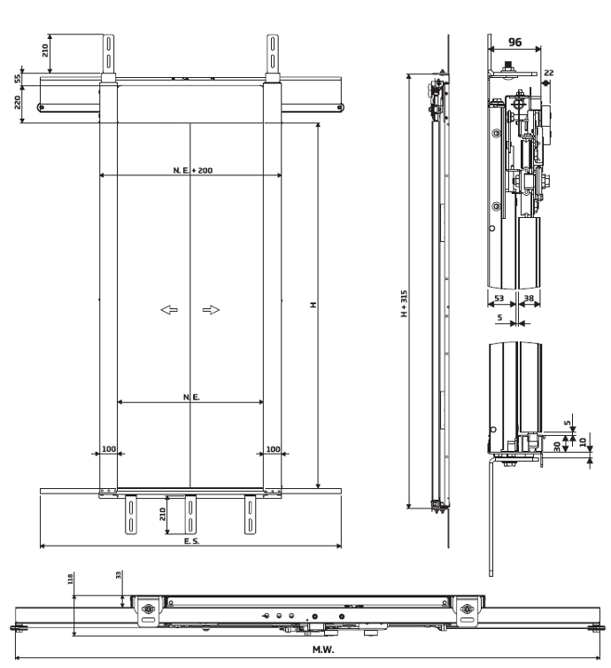
Central 2 Panel Landing Door