Central 2 Panel Cabin Door
Technical Specifiation
Drive Type Hydraulic / Screw
Carrying Capacity 315 kg
Maximum Travel Distance 3 mt
Working Speed 0,15 mt/sec
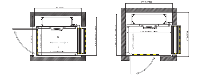
Platform Internal Dimensions 900*1400 mm / (Standart Dimension)
Platform External Dimensions 1400*1400 mm / (Standard Dimension)
Pit 100 mm
Door Automatic Locking-Safety Switch (Optional)
Controls Locked Controls On Floors And Platform Emergency Stop Button
Safety Anti Jamming Switches Under The Table / Bellows (Optional)
Main power requirement 220 V AC -50 Hz-Monofaze 220 V AC- 50 Hz-Single Phase 380 V AC -50 Hz-Monofaze 380 V AC- 50 Hz-Single Phase


